Kontakt os
-
-
Camilla Skovgaard Jonassen
Senior Projektchef, Ejendomsmægler, MDE
Email: cajo@edc.dk
Telefon: 40309093
-
Detaljer
Sagsnummer
80560799
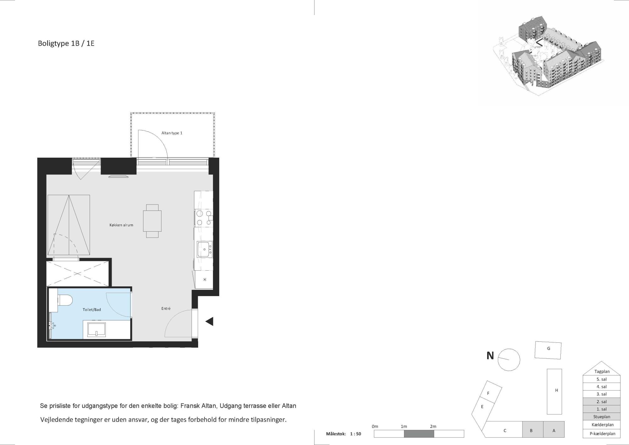
Adresse
Willemoesgade 15K, 3. 4
Salgsform
Leje
Ejendomstype
2C
Størrelse
49m²
Værelser
2
Månedlig husleje
-
Depositum
-
Aconto
-
Status
Udlejet
Dato tilgængelig
-
Lækre lejeboliger til alle behov
Gode faciliteter og komfort
Hver lejlighed er udstyret med alt, hvad hjertet begærer:
Altan eller direkte adgang til gårdrum: Perfekt til morgenkaffe, solbadning eller aftenhygge med venner og familie.
Lækre materialer: Bygget med fokus på kvalitet og æstetik, indbyder lejlighederne til et lyst og komfortabelt hjemmemiljø.
Hårde hvidevarer: Alle køkkener er fuldt udstyret med topmoderne hvidevarer, samt har alle boliger desuden fået installeret en kombimaskine.
Dyrevenligt: Husdyr er velkomne, så dine firbenede venner kan også føle sig hjemme. (der tillades én lille hund, eller én kat).
Stor gårdhave: Karréens store og indbydende gårdhave er til fri afbenyttelse for alle beboere.
Indflytning forventes at ske i juni og juli 2025.